Varianta 4 - Spațiu comercial în complexul Sky Garden – suprafață 164.50 mp disponibil imediat
Vă oferim spre închiriere un spațiu comercial cu suprafață de 164,5 mp, situat în cadrul ansamblului Sky Garden Residence, la doar câțiva pași de Pasarela Berceni și stația de metrou Berceni.

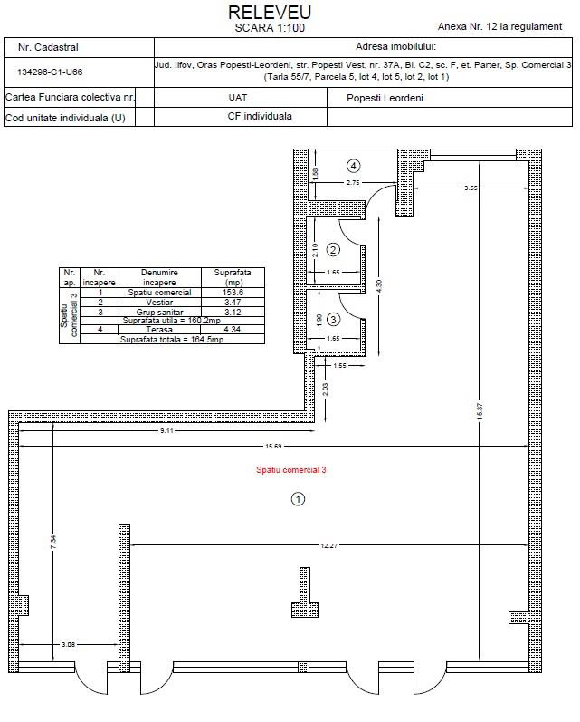
Spațiu Comercial de Închiriat – 164,5 mp | Vad excelent – Strada Mirăslău
Spațiul beneficiază de vad pietonal și auto excelent, vizibilitate directă la Strada Mirăslău și acces facil atât pentru clienți, cât și pentru aprovizionare.
• Suprafață: 164,5 mp
• Disponibil: imediat
• Configurație: open space, ușor de compartimentat
• Fațadă: vitrată generoasă
• Parcare: disponibilă în zonă
Ideal pentru: supermarket, farmacie, bancă, showroom, clinică medicală, cofetărie/patiserie, magazin specializat sau alte activități comerciale și de servicii.
Locație premium: complex rezidențial modern, peste 700 de apartamente în vecinătate, la intrarea în oraș și cu acces direct la metrou.

Haideți să ne cunoaștem!
Programul nostru este:
- 10:00 - 18:00
- 10:00 - 14:00
Completeaza formularul de contact de mai jos si te sunam noi!

